Design Feng Shui

Thiết kế nội thất - Mở ra những khoảng trời

Nằm trong khu quy hoạch của một quận mới tại Hà Nội, công trình này có diện tích đất khá rộng (hơn 300m2), tuy nhiên hình dáng đất (12x28m) lại là một tỷ lệ hơi… khó để làm một ngôi biệt thự. Vì vậy, nó vừa giống biệt thự, lại có nét giống một ngôi nhà phố liền kề.
 Thiet ke noi that BelDecor vn Giao hoa 03 resize
Chủ nhà gặp kiến trúc sư như một cái duyên muộn, bởi trước đó đã cầm trong tay tới 7-8 phương án mà vẫn chưa ưng; mà theo như kiến trúc sư kể lại, những phương án đó thiếu nét riêng, không có cá tính, mà chủ nhà lại rất… khó tính.
Cuối cùng, kiến trúc sư đã thuyết phục được chủ nhà, tìm được tiếng nói chung để tạo dựng nên công trình này – trở thành một tổ ấm đi về của ông chủ hay xê dịch.
Yêu cầu đưa ra là ngôi nhà phải hiện đại, tiện nghi, song có hình thức bên ngoài giản dị; và phải có sự kết nối với thiên nhiên, sân vườn. Với hiện trạng kích thước bề ngang đất giới hạn, kiến trúc sư đã quyết định đẩy công trình lệch sang một bên, để lấy khoảng sân vườn rộng phía bên kia.
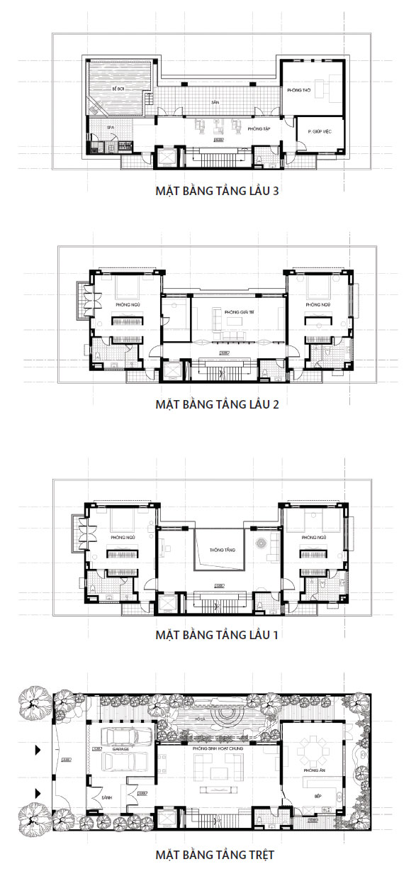
Mặt bằng của công trình có hình chữ U, mà phần hõm vào là điểm nhấn của không gian – một hồ cá koi với um tùm màu xanh cây lá. Cấu trúc mặt bằng khá mạch lạc với cầu thang ở giữa, hai phòng trước sau, song về chi tiết lại khá phức tạp trong việc tổ chức không gian nội thất.
Thiet ke noi that BelDecor vn Giao hoa 22 resize
Thiet ke noi that BelDecor vn Giao hoa 13 resize
Phòng khách nằm ở trung tâm ngôi nhà, kề bên hồ cá. Không gian ở đây được mở rộng với một vách kính lớn, không chỉ theo phương ngang, mà còn mở theo chiều cao với một khoảng thông tầng, tạo nên sự kết nối, giao hòa giữa trong và ngoài, trên và dưới.
Không gian bếp được tổ chức riêng biệt về phía sau, với nhiều điểm nhìn ra vườn. Cách thức tổ chức vườn theo lối hồ nuớc, non bộ, cây cảnh đậm nét hoa viên phương Đông, rất phù hợp và hiệu quả cho vùng sân vườn không rộng rãi và đem lại sự thay đổi trong nhận thức thị giác không nhàm chán.
Ở các tầng lầu, phần giữa kế bên cầu thang là các không gian sinh hoạt chung, hai đầu là các phòng ngủ tiện nghi với phòng vệ sinh riêng. Tất cả các phòng đều có chiếu sáng và thông thoáng tự nhiên.
Lầu 3 có một khoảng sân rộng và hệ thống các không gian dành cho hoạt động thể thao và chăm sóc sức khỏe như phòng tập, bể bơi, phòng spa. Phòng thờ được bố trí phía sau nhà.
Thiet ke noi that BelDecor vn Giao hoa 15 resize
Thiet ke noi that BelDecor vn Giao hoa 19 resize
 
Ngôn ngữ kiến trúc, phong cách nội thất ở ngôi nhà là sự kết hợp, giao hòa giữa hiện đại và cổ điển, phương Tây và phương Đông.
Ở hình thức chủ đạo của công trình là những mảng miếng lớn, đường nét thẳng, khá giản dị; song đi sâu vào lại là những décor mang tính truyền thống phương Đông như mái ngói, gạch hoa, các chi tiết trang trí hoa văn hay chữ triện.
Tinh thần ấy được quán triệt từ những chi tiết cửa sổ, hoa sắt, mảng trần, lan can cầu thang, hành lang hay các hệ thống kệ tủ, giường, bàn ghế… Chất liệu gỗ cùng màu nâu trầm cũng gợi nhắc về một sự an bình tĩnh tại, hướng nội.
Vấn đề khí hậu cũng được chú ý với nhiều giải pháp phù hợp như mái dốc, rộng vươn xa; các hệ thống ban công, ô văng; và đặc biệt là hệ thống cửa trong kính ngoài chớp.
Thiet ke noi that BelDecor vn Giao hoa 30 resize
Thiet ke noi that BelDecor vn Giao hoa 29 resize
Rất tiện nghi song cũng rất gần gũi, đó là tinh thần ngôi nhà được truyền tải và cũng là thành công của kiến trúc sư trong việc kết nối, giao hòa nhiều yếu tố. Nhưng giá trị nhất, theo cả kiến trúc sư và chủ nhà, ấy là hồ nước bên phòng khách.
Đó thực sự là trái tim ngôi nhà và là niềm yêu thích, sự quan tâm của tất cả các thành viên trong nhà. Đây là nơi được “sử dụng” nhiều nhất. Nó cũng là nơi kết nối các thành viên gia đình ở không gian sinh hoạt chung, thay vì ẩn mình trong những phòng ngủ riêng kín đáo và tiện nghi.
Ngắm và chăm sóc lũ cá là niềm vui chẳng bao giờ chán.
Thiet ke noi that BelDecor vn Giao hoa 01 resize
Thiet ke noi that BelDecor vn mat bang

Bel Decor - Making Different - Bringing Value

(Source: afamily)

>> Thiết kế nội thất 

>> Thiết kế nội thất biệt thự

>> Thiết kế nội thất văn phòng

>> Thiết kế nội thất căn hộ

>>Thiết kế nội thất shop / showroom 

>> Thiết kế nội thất tiêu biểu

0
Shares